Oat Milk Studios
Download Area
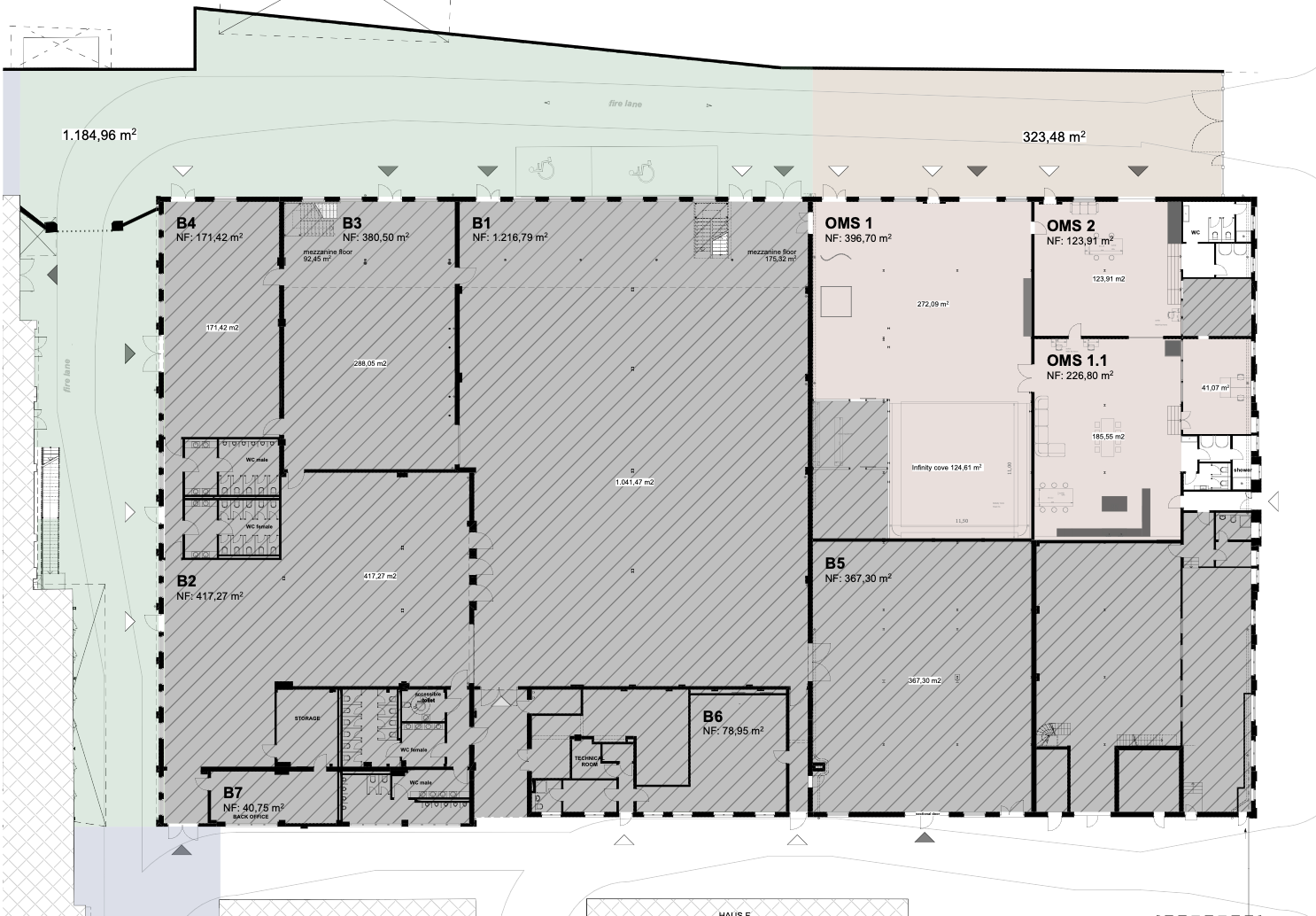
Hier finden Sie alle für die Produktion erforderlichen Grundrisse und DWG-Dateien der Wilhelm Studios. Dazu gehören architektonische und technische Zeichnungen für die Planung und Umsetzung (Grundrisse, Maße, Deckenhöhen, Zugänge, Ladezonen, Stromversorgung, Aufhängepunkte, Notausgänge und sonstige relevante Infrastruktur).
RAUM
OAT MILK STUDIOS 1
OAT MILK STUDIOS Produktionsbüro
OAT MILK STUDIOS 2
OAT MILK STUDIOS 1 Küchenbereich
EINDRÜCKE
OMS 1. Stufe
Eingang OMS 1
Infinity Cove OMS 1
OMS 1 Juniorenstufe