HALL C
DOWLOAD AREA
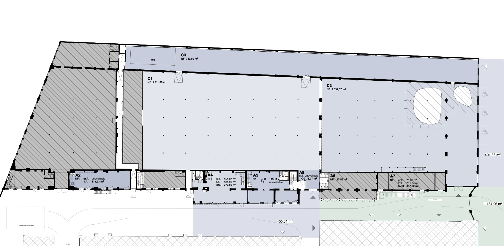
Here you can find all relevant floor plans and DWG files for Wilhelm Studios required for the production. These include architectural and technical drawings for planning and execution (layouts, dimensions, ceiling heights, access points, loading areas, power supply, rigging points, fire exits, and other relevant infrastructure).
SPACE
C1
C2 - Chapel
C3
C2
IMPRESSIONs
C2 Chapel Dinner
C1 Catering Area
C2 Fair
C2 Christmas Market
C3 Art Exhibiton
C2 Entrance